Property Details
1 1 1
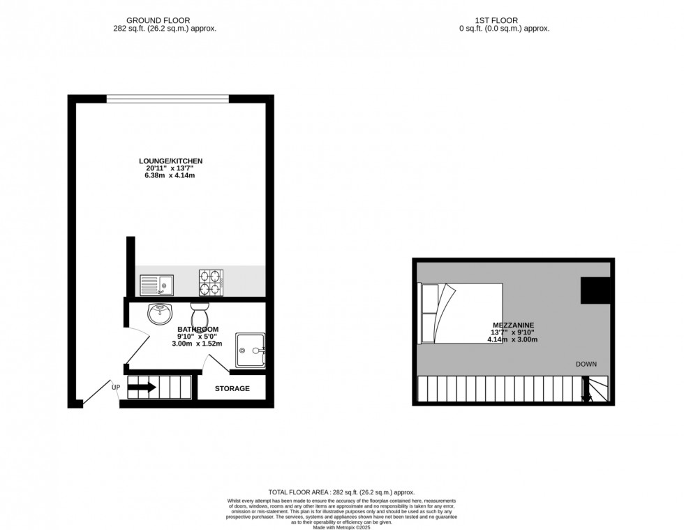
This unique and stylish one bedroom studio apartment with a mezzanine level is located within the sought-after development on Hudson Street, Gateshead. Combining modern design with character, the property offers a fantastic opportunity for first time buyers, professionals, or investors seeking contemporary city living.
The apartment features an open plan lounge and kitchen area, providing a bright and sociable living space with a modern finish throughout. The mezzanine bedroom area overlooks the main living space, adding a distinctive and airy feel, while the property also benefits from a well appointed bathroom and secure entry access.
Ideally positioned just a short walk from both Gateshead Quayside and Newcastle City Centre, residents can enjoy easy access to a vibrant selection of bars, restaurants, shops, and cultural attractions including The Sage and Baltic Centre for Contemporary Art. Excellent transport links are close by, with Gateshead Metro Station and major road connections such as the A1(M) just minutes away.
Offering style, convenience, and a prime location, this apartment is perfect for those looking to enjoy modern urban living on the edge of the city.
- Investors or Home Buyers
- Mezzanine Studio Apartment
- First Floor
- Currently Tenanted
- 9.4% Gross Return
- Fantastic Location
- EPC Rating D
- Council Tax B






