Property Details
3 2 1
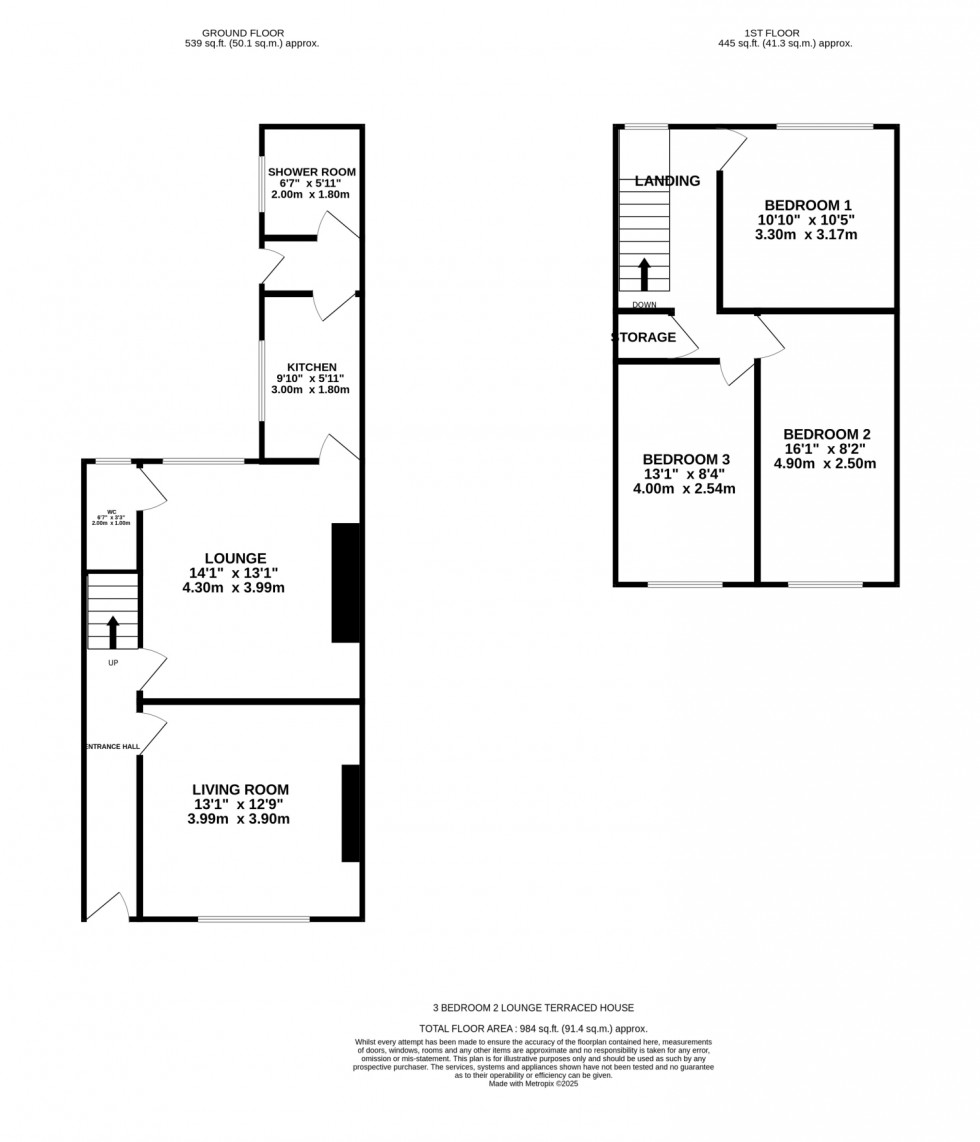
This well-proportioned three-bedroom terraced house offers generous living space and excellent potential in the increasingly popular village of Bowburn, just a short drive from Durham City. Ideal for first-time buyers, families, or investors, the property combines traditional features with spacious rooms throughout.
The ground floor features two versatile reception rooms, providing the perfect layout for both living and dining, along with a fitted kitchen and a guest WC. Upstairs, there are three good-sized bedrooms and a family bathroom, making this a practical home with room to grow.
Located on Steavenson Street, the property enjoys the benefits of Bowburn's growing community, which has seen significant investment in recent years. The village offers a range of amenities including shops, cafés, local schools, parks, and excellent transport connections. With swift access to the A1(M), the location is ideal for commuting to Durham, Newcastle, Darlington, and Teesside, while still being close to scenic countryside walks and the historic attractions of Durham City.
- Investors or Homebuyers
- Terraced House
- Three Bedrooms
- Two Reception Rooms
- Guest WC
- Close To Durham City
- No Onward Chain
- Easy Access To A1
- Council Tax A
- EPC Rating E










