Property Details
5 1 2
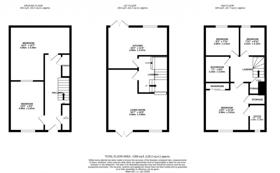
A superb opportunity to acquire this generously sized five-bedroom home, arranged over three floors, and ideally located on St. Cuthbert's Road, Gateshead. Offering a flexible and spacious layout, this well-maintained property is ideal for families, professionals, or investors seeking strong rental potential.
The accommodation features a large lounge, a modern fitted kitchen, and five well-proportioned bedrooms, including a main family bathroom and a private en-suite to the top-floor principal bedroom. The layout across three floors provides excellent separation of space for comfortable modern living.
Externally, the home benefits from a part paved, part grass area to the rear garden and a private driveway, providing valuable off-street parking.
Perfectly positioned just a short distance from both Newcastle city centre and central Gateshead, the property enjoys excellent transport connections, local schools, shops, and amenities.
This is a substantial and versatile home in a sought-after locationâearly viewing is highly recommended.
- Investors or Home Buyers
- Terraced Town House
- Five Bedrooms
- Tenanted until Feb 2026
- Two Bathrooms
- Large rear garden
- Guest WC
- Driveway
- Council Tax C
- EPC Rating C



















