95A Percy Street, Newcastle upon Tyne, NE1 7RW    0191 447 7277

Carr Hill Road, Gateshead, NE9 - OIRO, £135,000 For Sale


Property Details

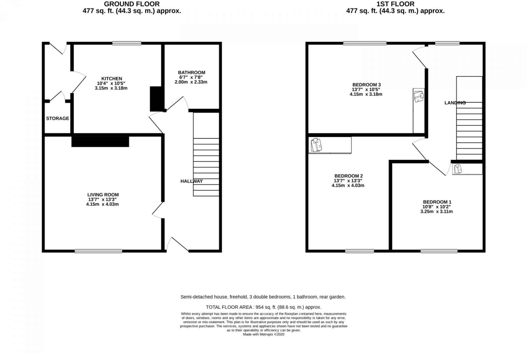
3 1 1
Well-presented three bedroom semi-detached home offering spacious and practical accommodation. The property features a welcoming living area, a functional kitchen, and the added convenience of a ground floor bathroom, making it suitable for a range of buyers. Upstairs, there are three well proportioned bedrooms, providing flexible living space. Externally, the home benefits from on street parking and low maintenance outdoor areas. The property is currently tenanted until June 2026, making it an attractive ready made investment opportunity, while also offering future potential for owner occupiers once vacant. Situated in the popular Carr Hill area of Gateshead, the property enjoys excellent access to local amenities, schools, and transport links. The A1, Team Valley, and Gateshead town centre are all within easy reach, making this an ideal location for commuters travelling across Tyneside. Regular public transport services provide convenient links to Newcastle city centre, while nearby shops, supermarkets, and green spaces enhance day-to-day living. This well connected and consistently in demand area appeals strongly to investors seeking reliable rental demand and home buyers planning ahead. **DISCLAIMER** Please note the property is of non-standard (system-built) construction. All prospective purchasers are advised to make their own enquiries with their mortgage lender and legal representative prior to arranging a viewing or making an offer.

  • Homebuyers or Investors
  • Semi-Detached House
  • Three double bedrooms
  • Tenanted until June 2026
  • Fantastic Location
  • On Street Parking
  • Private rear garden
  • EPC Rating C
  • Council Tax Band A
  • PLEASE READ DISCLAIMER